Обяви За нас Контакти
Продава КЪЩА
област Бургас, с. Черни връх
127 400 €
249 172.74 лв.

(980 €, 1 916.71 лв./m2)
Цената е с включено ДДС
Публикувана в 10:11 на 10 ноември, 2025 год.
Обявата е посетена 11 пъти.
Площ:
130 m2
Двор:
400 m2
Газ:
НЕ
ТEЦ:
НЕ
Строителство:
Тухла, 2026 г.

Описание на имота:


За повече информация обадете ни се на тел: 0882 817 497 или 056 828 449 и цитирайте референтния номер на имота: BS 88620.

Отговорен брокер: Павел Раванов

Без комисионна от купувача!

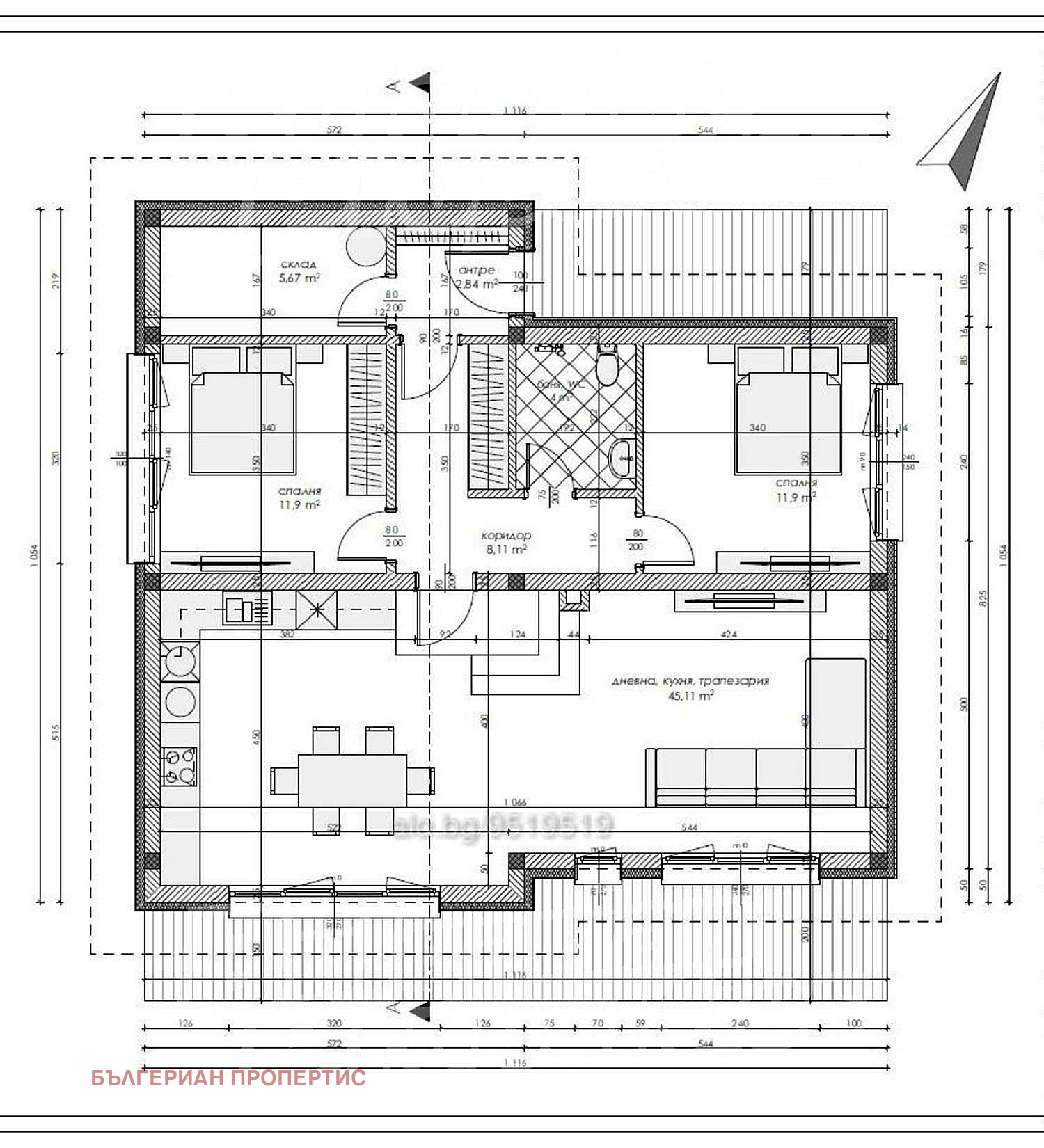
Предлагаме за продажба нова едноетажна къща с акт 15, разположена в село Черни връх, само на кратко разстояние от град Бургас. Имотът е с обща застроена площ от 130 кв.м и предлага съвременно архитектурно решение, съчетаващо комфорт, светлина и функционалност.

Разпределението включва входно антре, просторна дневна зона с кухненски бокс и трапезария, две спални, баня с тоалетна, сервизно помещение и широка южна веранда, която създава перфектно място за отдих и летни вечери на открито. В дневната има възможност за обособяване на допълнителна трета стая при желание.

Къщата разполага със самостоятелен двор от 400 кв.м, подходящ за озеленяване, изграждане на барбекю зона, беседка или малък басейн. Плоският покрив предлага потенциал за монтаж на соларни панели и възможност за създаване на енергийно независим дом.

Имотът се издава на степен шпакловка и замазка (на тапа), което позволява на бъдещия собственик да реализира интериора в свой стил от подовите настилки до обзавеждането.

Това предложение съчетава модерна визия, екологичен потенциал и спокойствие, само на минути от морето и градската динамика. Отличен избор за постоянно живеене или ваканционен дом близо до Бургас.

Оглед на имота
Можем да организираме оглед на имота спрямо нашия график и възможностите за достъп до него. Заявете вашето желание за оглед, като се свържете с отговорния за офертата брокер по имейл или телефон.

Резервация на имота
Имотът може да бъде резервиран и свален от продажба със заплащане на депозит, след което се прекратява провеждането на огледи с други купувачи и започва подготовка на документите за сключване на предварителен и окончателен договор. Свържете се с отговорния брокер за подробна информация относно процедурата на покупка и начините за плащане.

Жилищен кредит
Ние си партнираме с водещите български банки и можем да ви свържем с техните консултанти за информация и кандидатстване за кредит.
...
Виж всички обяви в newbulprop.bazar.bg или тук
Особености
Тухла
Интернет връзка
Контрол на достъпа
За контакт:
0882817497
Агенция:
БЪЛГЕРИАН ПРОПЕРТИС
02 425 68 86
БЪЛГЕРИАН ПРОПЕРТИС  logo
Медал за прослужено време
В imot.bg от 2011 г.
newbulprop.imot.bg
Адрес:
област София, гр. София, кв. Лозенец, ул. Златен рог 22, ет. 4, офис 7
http://www.bulgarianproperties.bg
ИЗПРАТИ ЗАПИТВАНЕ
ИЗПРАТИ ЗАПИТВАНЕТО

Продава КЪЩА
област Бургас, с. Черни връх
Обява: 1j176276230554822

127 400 €
249 172.74 лв.
(980 €, 1 916.71 лв./m2)

Цената е с включено ДДС
ЗАПАЗИ ОБЯВАТА

Местоположение: област Бургас, с. Черни връх